Description
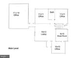
3000 sf Office/Retail/Storage Freestanding Building on US 29 Broadview Ave for Lease. Highly visible with signage on US 29, 5 offices, conference room, reception, waiting area, two bathrooms, kitchen, full unfinished basement and coffee bar. Fully remodeled and modernized. Property contains17 marked parking spaces. Zoned C in the Town of Warrenton. Formerly used a real estate office, hair salon, telecom/contractors office and jewelry store. Would also make a nice lawyer's office and title agency. 1-3 year lease term preferable.
-
0BEDS
-
0.44ACRES
-
0BATHS
-
01/2 BATHS
Description
3000 sf Office/Retail/Storage Freestanding Building on US 29 Broadview Ave for Lease. Highly visible with signage on US 29, 5 offices, conference room, reception, waiting area, two bathrooms, kitchen, full unfinished basement and coffee bar. Fully remodeled and modernized. Property contains17 marked parking spaces. Zoned C in the Town of Warrenton. Formerly used a real estate office, hair salon, telecom/contractors office and jewelry store. Would also make a nice lawyer's office and title agency. 1-3 year lease term preferable.
©2026 Bright MLS, All Rights Reserved. IDX information is provided exclusively for consumers' personal, non-commercial use and may not be used for any purpose other than to identify prospective properties consumers may be interested in purchasing. Some properties which appear for sale may no longer be available because they are for instance, under contract, sold, or are no longer being offered for sale. Information is deemed reliable but is not guaranteed accurate by the MLS or Debbie Dogrul Associates | EXP Realty. Some real estate firms do not participate in IDX and their listings do not appear on this website. Some properties listed with participating firms do not appear on this website at the request of the seller. Data last updated: 2026-03-14T23:53:16.193.
